BonoPlan Архитектурная мастерская
Реализуем ваши мечты через архитектуру
Рабочий проект АР и КР дома
На старте работы с проектом мы создаем рабочую группу в мессенджере, в которой с нашей стороны участвуют Архитектор и Конструктор. Заказчик также может добавить в группу участников
со своей стороны.

В группе мы собираем вместе с заказчиком ТЗ по проекту, определяем какие материалы будут использоваться при проектировании дома. На основе ТЗ создаем 3D модель, «видеоролик» вида дома снаружи и изнутри (запись экрана) с показом расстановки мебели, а также планировок дома. Данные материалы позволяют Заказчику максимально подробно и реалистично увидеть свой будущий дом.

В процессе работы мы также используем непосредственное общение онлайн. Архитектор включает демонстрацию своего экрана и вместе с Заказчиком вносит изменения в модель и
планировочные решения.

Данная схема работы позволяет быстро подобрать оптимальное решение, что в разы сокращает согласование архитектурной части дома с заказчиком.

После завершения проекта группа не удаляется из мессенджера. Заказчик всегда может задать вопрос по проекту и получить консультацию по стройке, и оперативно получить от нас
ответ.
Демонстрации рабочего экрана
состав проекта
1. Титульный лист
2. Ведомость чертежей
3. Пояснительная записка
4. Визуализация вид 1
5. Визуализация вид 2
6. Визуализация вид 3
7. Визуализация вид 4
8. Генплан участка
9. Схема наружных инженерных сетей
10. Разбивочный чертеж
11. План осей
12. План подвала/цокольного этажа (при наличии)
13. План расстановки мебели в подвале/цокольном этаже (при наличии)
14. План фундамента
15. План вентиляции и канализации фундамента
16. План колонн и ригелей фундамента
17. Армирование колонн и ригелей фундамента
18. 3 D вид фундамента
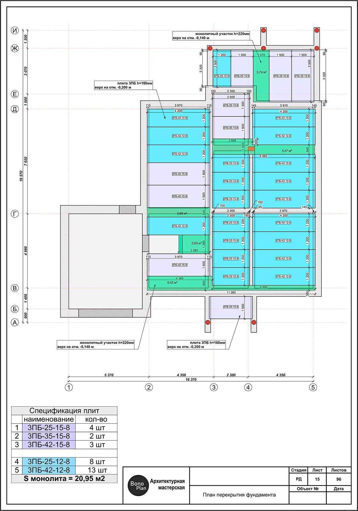
19. План перекрытия фундамента
20. План маркировки дверей и окон подвала/цокольного этажа (при наличии)
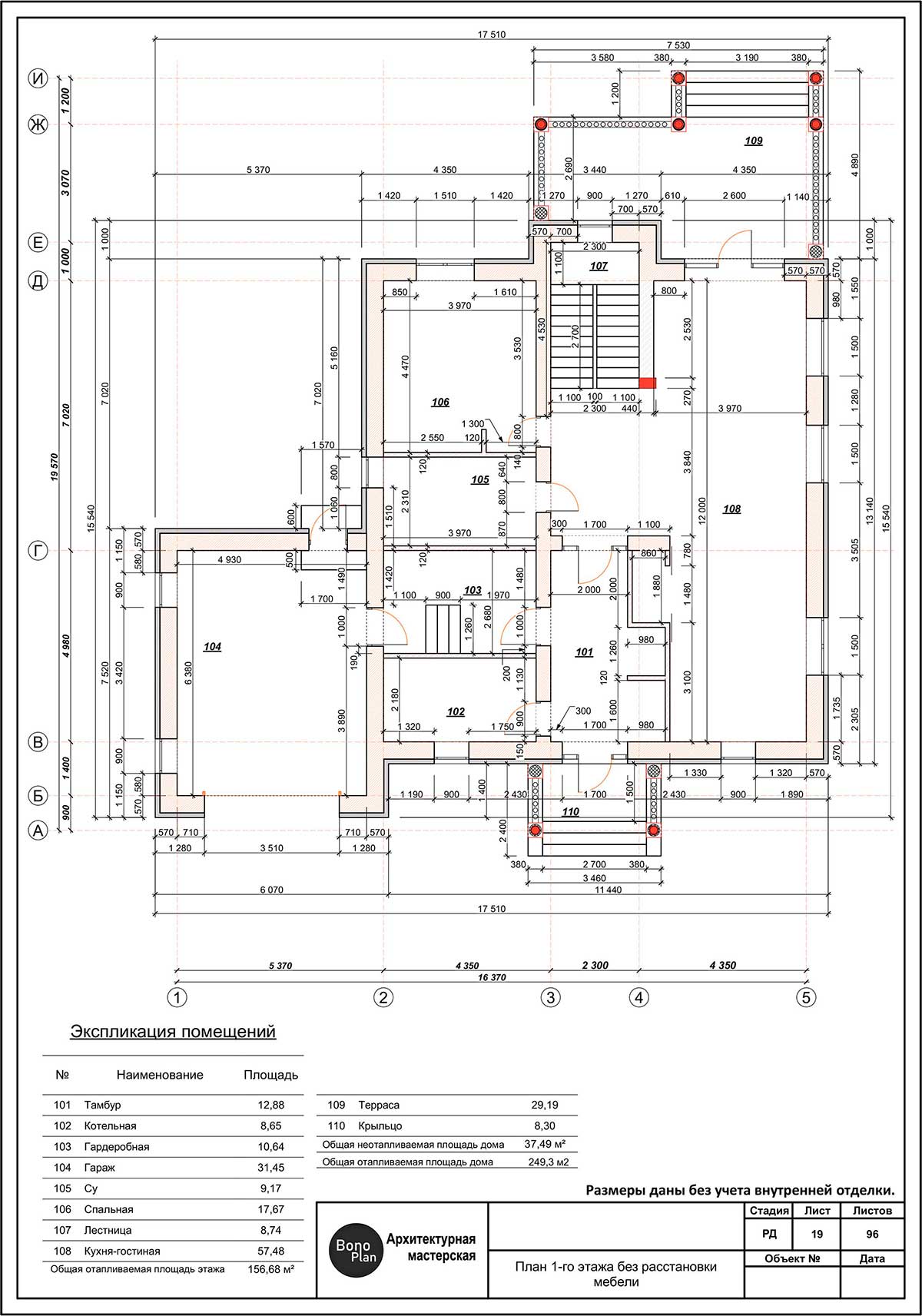
21. План 1-го этажа
22. План расстановки мебели 1-го этажа
23. Кладочный план 1-го этажа
24. План колонн и ригелей 1-го этажа
25. Армирование колонн и ригелей 1-го этажа
26. План перекрытия 1-го этажа
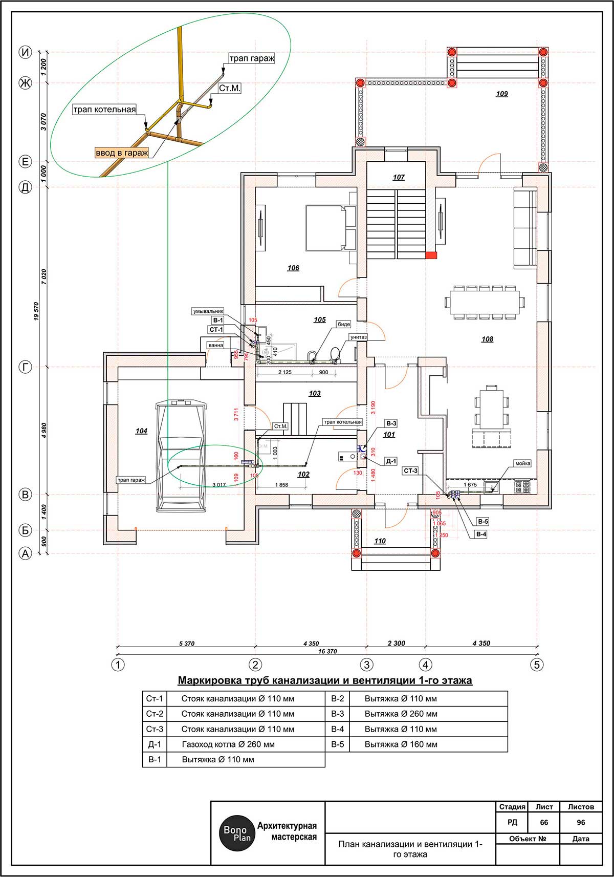
27. План вентиляции и канализации 1-го этажа
28. План маркировки дверей и окон 1-го этажа
29. План 2-го этажа
30. План расстановки мебели 2-го этажа
31. Кладочный план 2-го этажа
32. План колонн и ригелей 2-го этажа
33. Армирование колонн и ригелей 2-го этажа
34. План перекрытия 2-го этажа
35. План вентиляции и канализации 2-го этажа
36. План маркировки дверей и окон 2-го этажа
37. Планы уровней кровли с показом желобов, водосточных воронок и труб дымоходов
38. План стропильной системы
39. З D схема труб канализации и вентиляции
40. Фасад 1-2 в линиях с показом водосточной системы
41. Фасад 2-1 в линиях с показом водосточной системы
42. Фасад А-Б в линиях с показом водосточной системы
43. Фасад Б-А в линиях с показом водосточной системы
44. Фасад 1-2 в цвете с показом водосточной системы
45. Фасад 2-1 в цвете с показом водосточной системы
46. Фасад А-Б в цвете с показом водосточной системы
47. Фасад Б-А в цвете с показом водосточной системы
48. План маркировки разрезов
49. Разрезы по разнотипным стенам
50. Разрез 1-1
51. Разрез 2-2
52. Разрез 3-3
53. Разрез 4-4
ПРЕИМУЩЕСТВА НАШЕГО РАБОЧЕГО ПРОЕКТА АР и КР
Быстрое получение результата за счет многолетнего опыта и знаний, применяемых нами методов проектирования дома.

Наш рабочий проект дает реальную детализацию конструктива

Гарантирует комфорт и эргономику планировочных решений

Дает возможность контролировать строительство и дает гарантию, что дом будет построен с соблюдением всех строительных технологий

Позволяет выбрать наиболее экономичное решение

Является пошаговой инструкцией по строительству дома, что дает возможность заказчику контролировать процесс строительства

Включает в себя наружные сети, внутренние сети канализации и вентиляции, вводы в дом, а не только архитектурно – конструктивную часть.
Видео демонстрация фасада
Состав проекта АР и КР
1.-Титульный-лист
1.-Титульный-лист
2.-Ведомость-чертежей,-лист-1
2.-Ведомость-чертежей,-лист-1
3.-Ведомость-чертежей,-лист-2
3.-Ведомость-чертежей,-лист-2
4.-Пояснительная-записка
4.-Пояснительная-записка
5.-Визуализация,-вид-1
5.-Визуализация,-вид-1
6.-Визуализация,-вид-2
6.-Визуализация,-вид-2
7.-Визуализация,-вид-3
7.-Визуализация,-вид-3
8.-Визуализация,-вид-4
8.-Визуализация,-вид-4
9.-Визуализация,-вид-5
9.-Визуализация,-вид-5
10.-Схема-генплана-участка
10.-Схема-генплана-участка
11.-Схема-посадки-дома-на-участке
11.-Схема-посадки-дома-на-участке
12.-План-осей
12.-План-осей
13.-План-фундамента
13.-План-фундамента
14.-3D-вид-фундамента
14.-3D-вид-фундамента
15.-План-перекрытия-фундамента
15.-План-перекрытия-фундамента
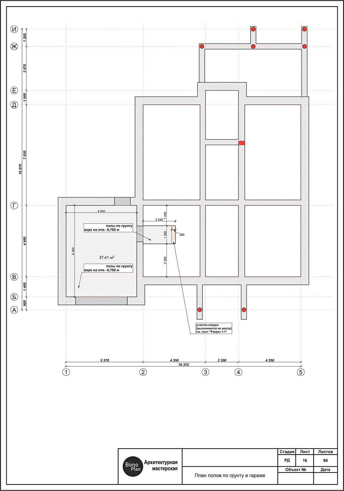
16.-План-полов-по-грунту-в-гараже
16.-План-полов-по-грунту-в-гараже
17.-3D-вид-перекрытия-фундамента
17.-3D-вид-перекрытия-фундамента
18.-План-1-го-этажа-с-расстановкой-мебели
18.-План-1-го-этажа-с-расстановкой-мебели
19.-План-1-го-этажа-без-расстановки-мебели
19.-План-1-го-этажа-без-расстановки-мебели
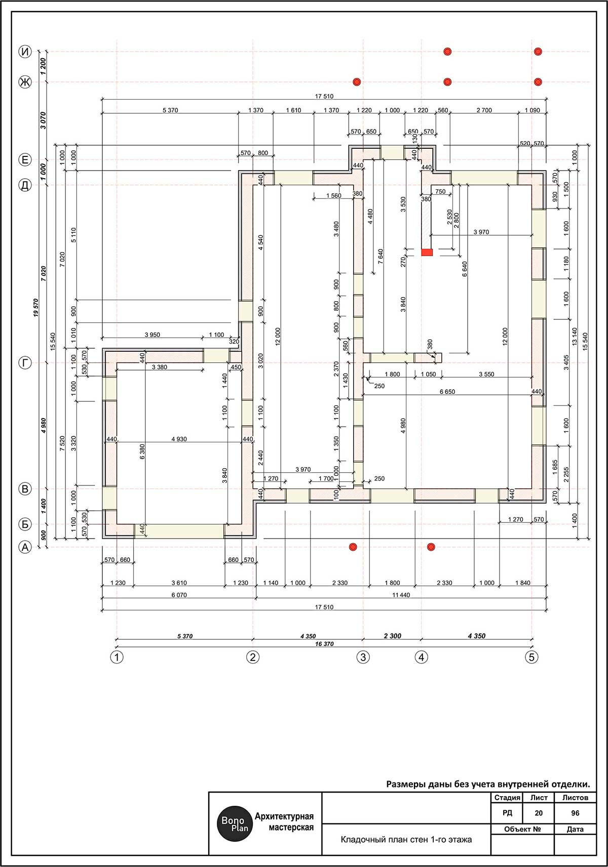
20.-Кладочный-план-стен-1-го-этажа
20.-Кладочный-план-стен-1-го-этажа
21.-Кладочный-план-перегородок-1-го-этажа
21.-Кладочный-план-перегородок-1-го-этажа
22.-План-перемычек-1-го-этажа
22.-План-перемычек-1-го-этажа
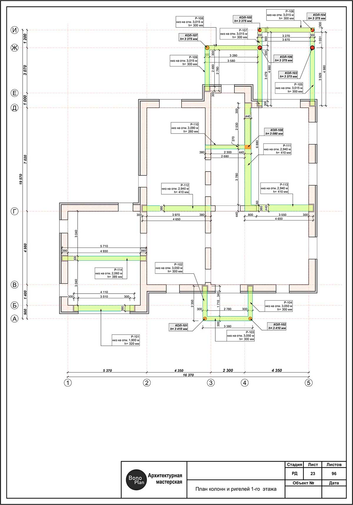
23.-План-колонн-и-ригелей-1-го--этажа
23.-План-колонн-и-ригелей-1-го--этажа
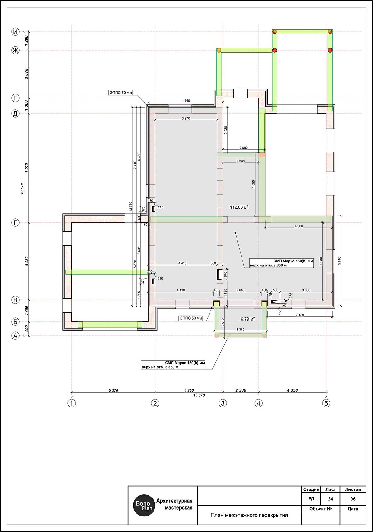
24.-План-межэтажного-перекрытия
24.-План-межэтажного-перекрытия
25.-План-деревянных-перекрытий-над-гаражом-и-террасой
25.-План-деревянных-перекрытий-над-гаражом-и-террасой
26.-План-перекрытия-2-й-свет
26.-План-перекрытия-2-й-свет
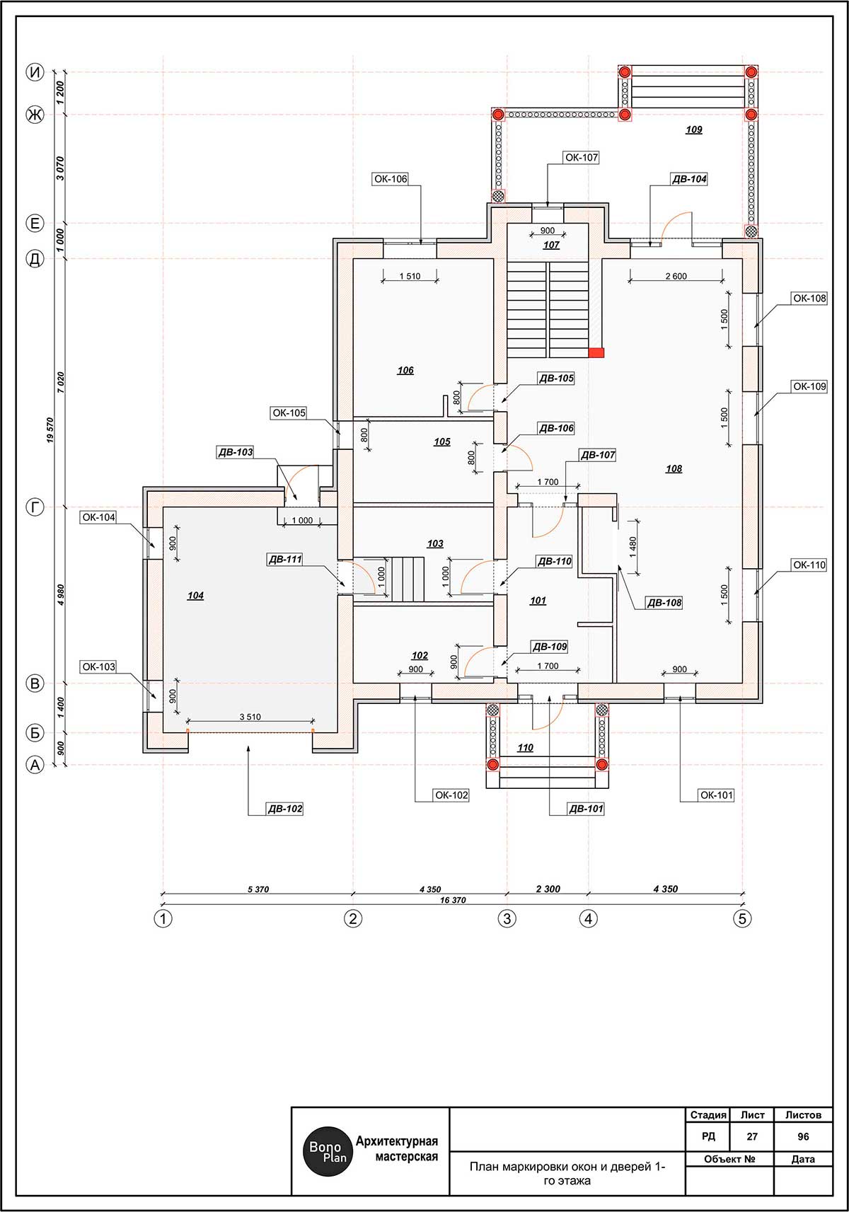
27.-План-маркировки-окон-и-дверей-1-го-этажа
27.-План-маркировки-окон-и-дверей-1-го-этажа
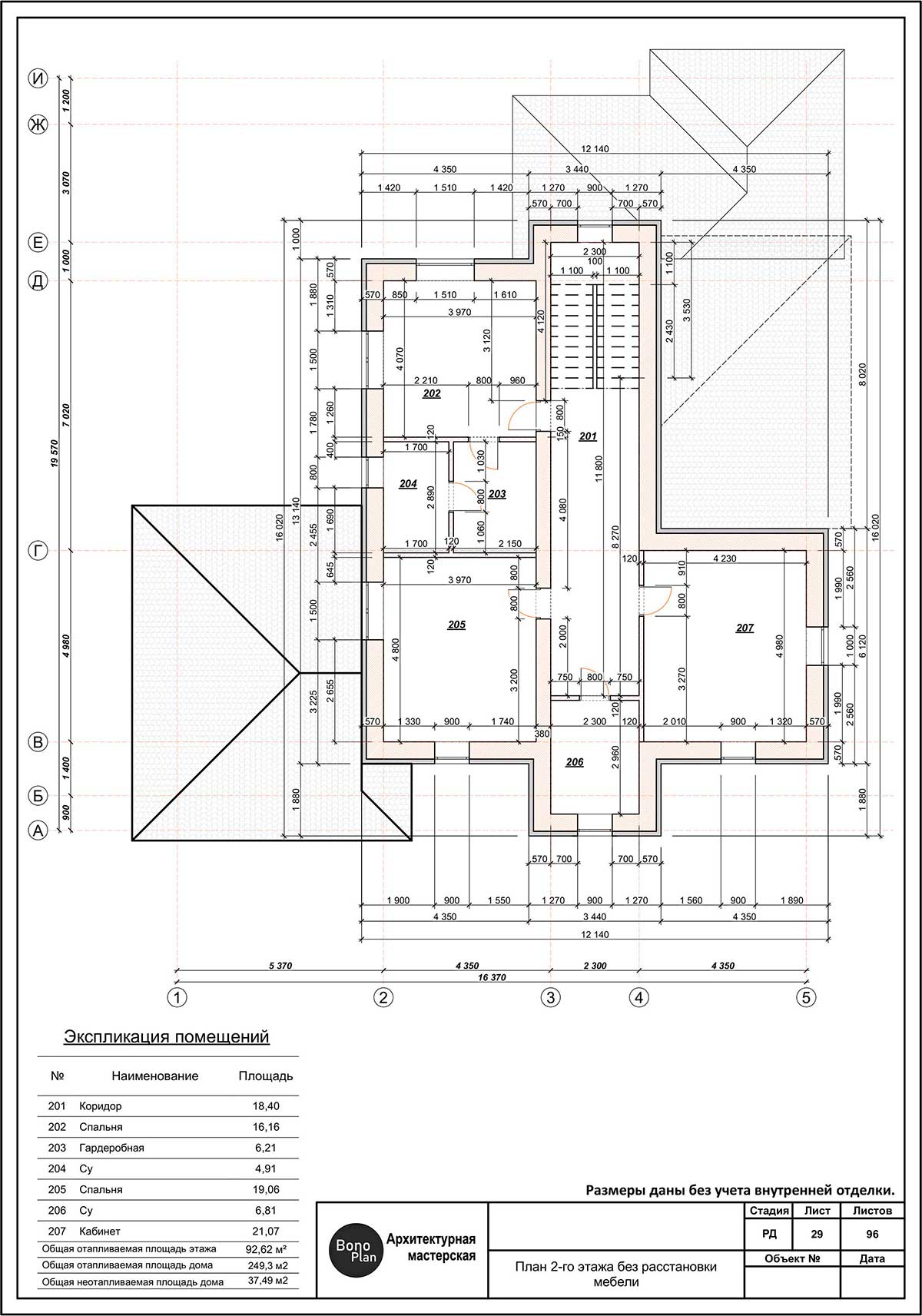
28.-План-2-го-этажа-с-расстановкой-мебели
28.-План-2-го-этажа-с-расстановкой-мебели
29.-План-2-го-этажа-без-расстановки-мебели
29.-План-2-го-этажа-без-расстановки-мебели
30.-Кладочный-план-стен-2-го-этажа
30.-Кладочный-план-стен-2-го-этажа
31.-Кладочный-план-перегородок-2-го-этажа
31.-Кладочный-план-перегородок-2-го-этажа
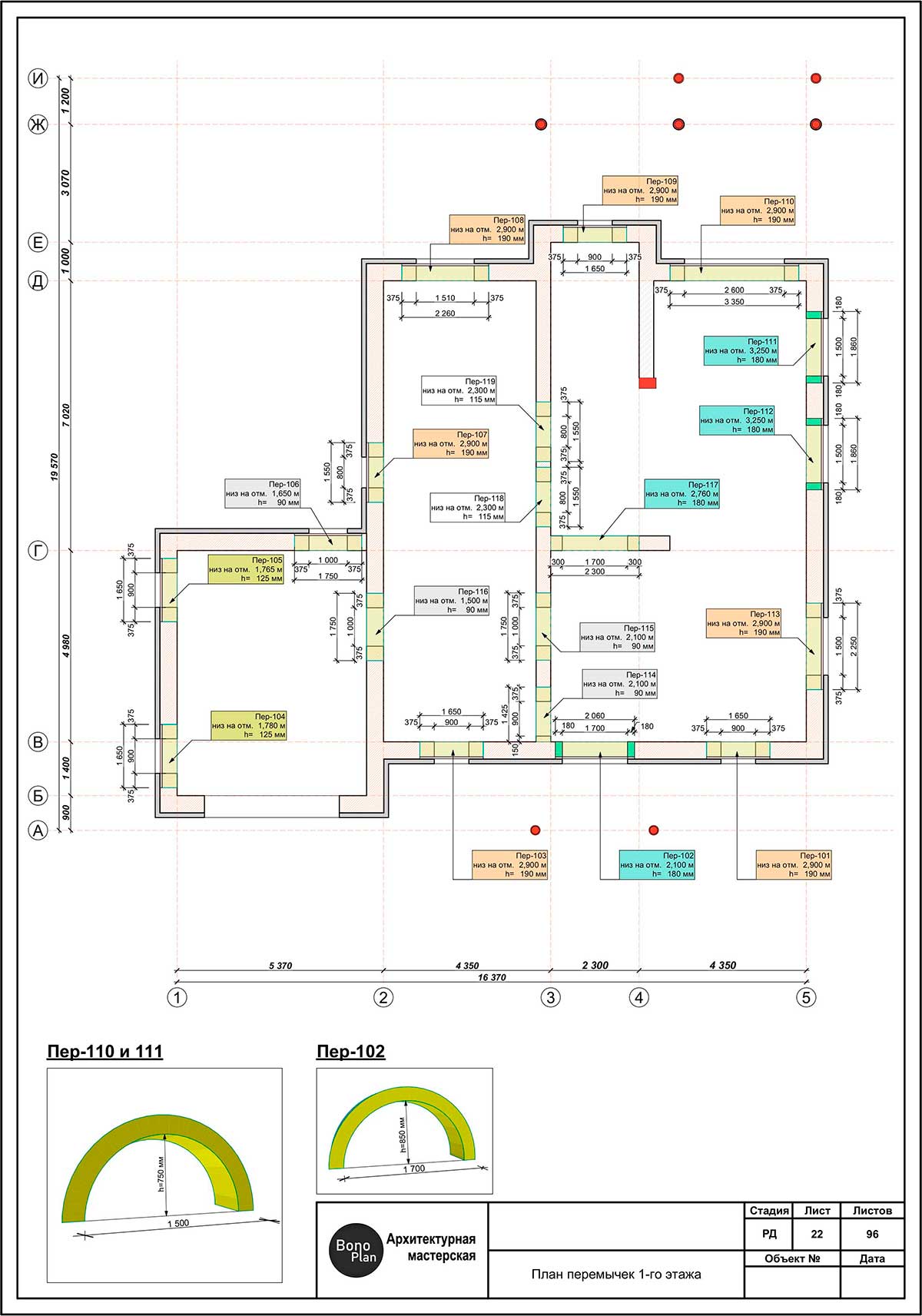
32.-План-перемычек-2-го-этажа
32.-План-перемычек-2-го-этажа
33.-План-колонн-и-ригелей-2-го-этажа
33.-План-колонн-и-ригелей-2-го-этажа
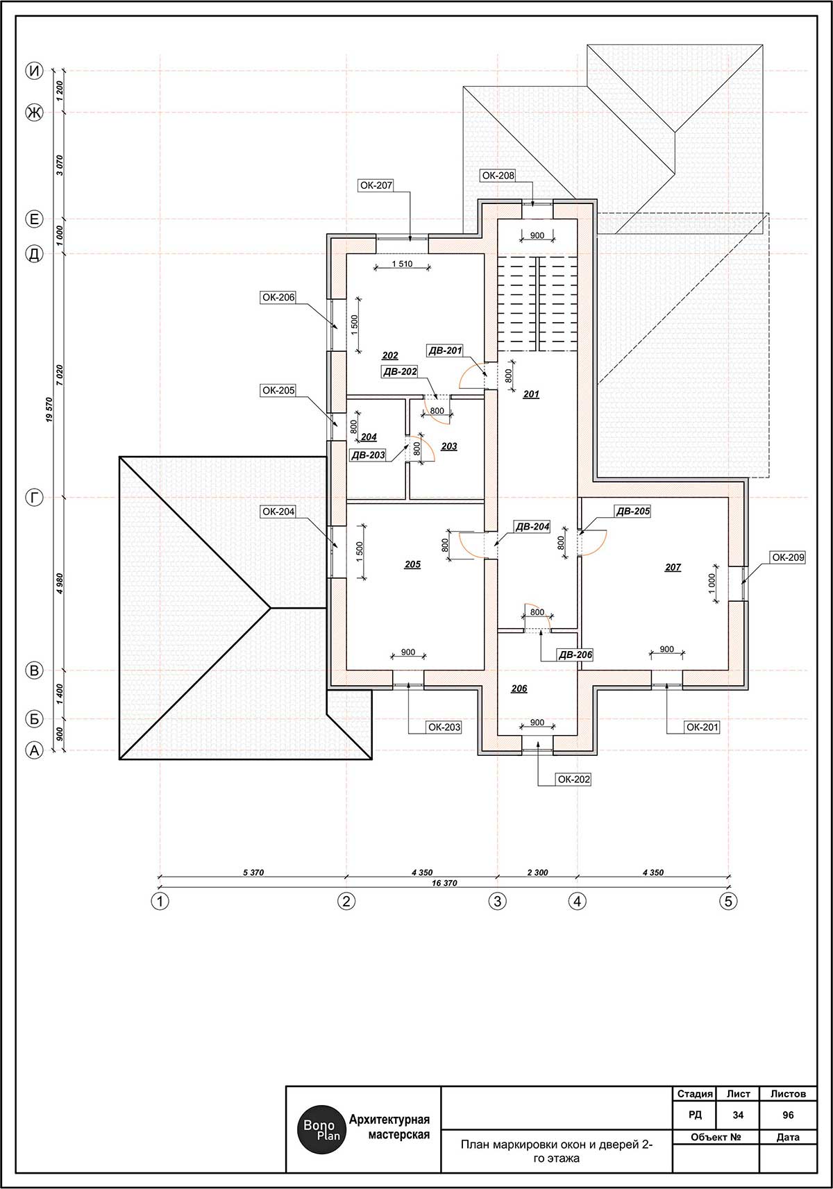
34.-План-маркировки-окон-и-дверей-2-го-этажа
34.-План-маркировки-окон-и-дверей-2-го-этажа
35.-Ведомость-окон--1-го-и-2-го--этажей
35.-Ведомость-окон--1-го-и-2-го--этажей
36.-Ведомость--дверей-1-го-и-2-го--этажей
36.-Ведомость--дверей-1-го-и-2-го--этажей
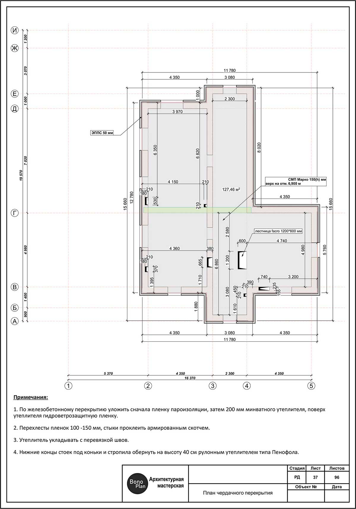
37.-План-чердачного-перекрытия
37.-План-чердачного-перекрытия
38.-План-крыши-над-1-м-этажом
38.-План-крыши-над-1-м-этажом
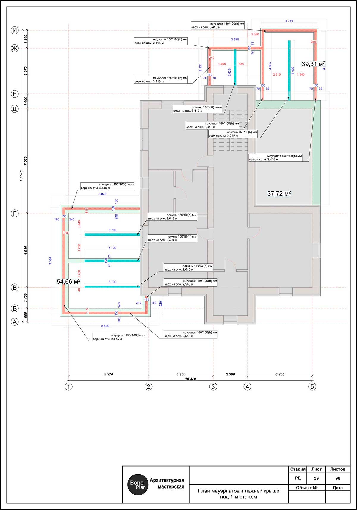
39.-План-мауэрлатов-и-лежней-крыши-над-1-м-этажом
39.-План-мауэрлатов-и-лежней-крыши-над-1-м-этажом
40.-3D-вид-мауэрлатов-и-лежней-крыши-над-1-м-этажом
40.-3D-вид-мауэрлатов-и-лежней-крыши-над-1-м-этажом
41.-План-коньков,-ендов-и-ребер-крыши-над-1-м-этажом
41.-План-коньков,-ендов-и-ребер-крыши-над-1-м-этажом
42.-3D-вид-коньков,-ендов-и-ребер-крыши-над-1-м-этажом
42.-3D-вид-коньков,-ендов-и-ребер-крыши-над-1-м-этажом
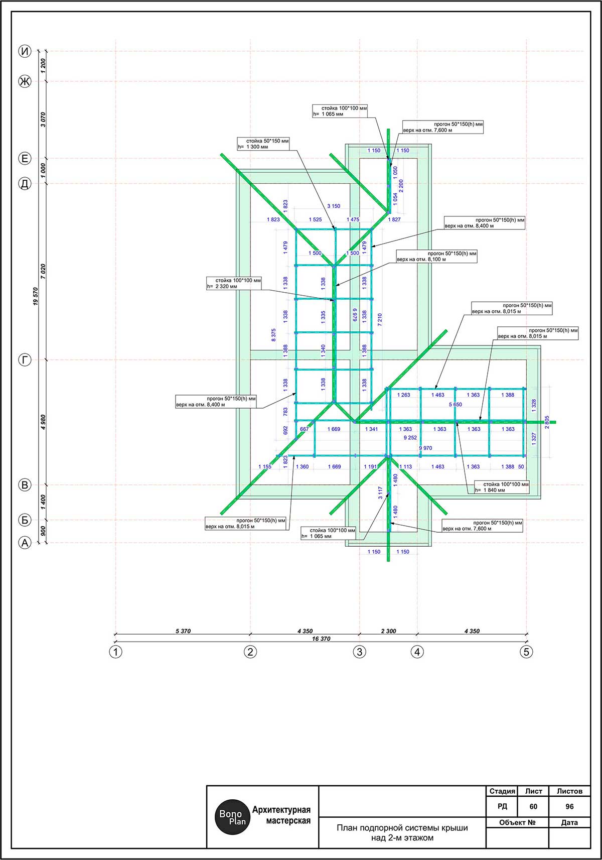
43.-План-подпорной-системы-крыши-над-1-м-этажом
43.-План-подпорной-системы-крыши-над-1-м-этажом
44.-3D-вид-подпорной-системы-крыши-над-1-м-этажом
44.-3D-вид-подпорной-системы-крыши-над-1-м-этажом
45.-Схема-стропильной-системы-крыши-над-1-м-этажом
45.-Схема-стропильной-системы-крыши-над-1-м-этажом
46.-3D-вид-стропильной-системы-крыши-над-1-м-этажом
46.-3D-вид-стропильной-системы-крыши-над-1-м-этажом
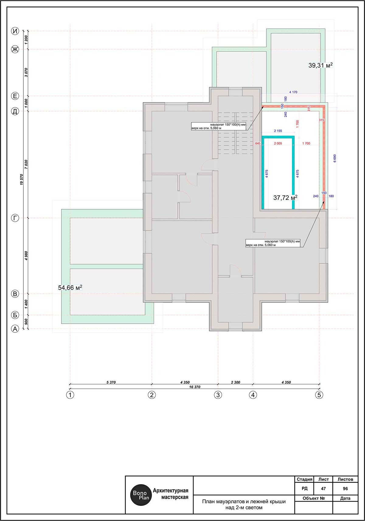
47.-План-мауэрлатов-и-лежней-крыши-над-2-м-светом
47.-План-мауэрлатов-и-лежней-крыши-над-2-м-светом
48.-3D-вид-мауэрлатов-и-лежней-крыши-над-2-м-светом
48.-3D-вид-мауэрлатов-и-лежней-крыши-над-2-м-светом
49.-План-коньков-и-ребер-крыши-над-2-м-светом
49.-План-коньков-и-ребер-крыши-над-2-м-светом
50.-3D-вид-коньков-и-ребер-крыши-над-2-м-светом
50.-3D-вид-коньков-и-ребер-крыши-над-2-м-светом
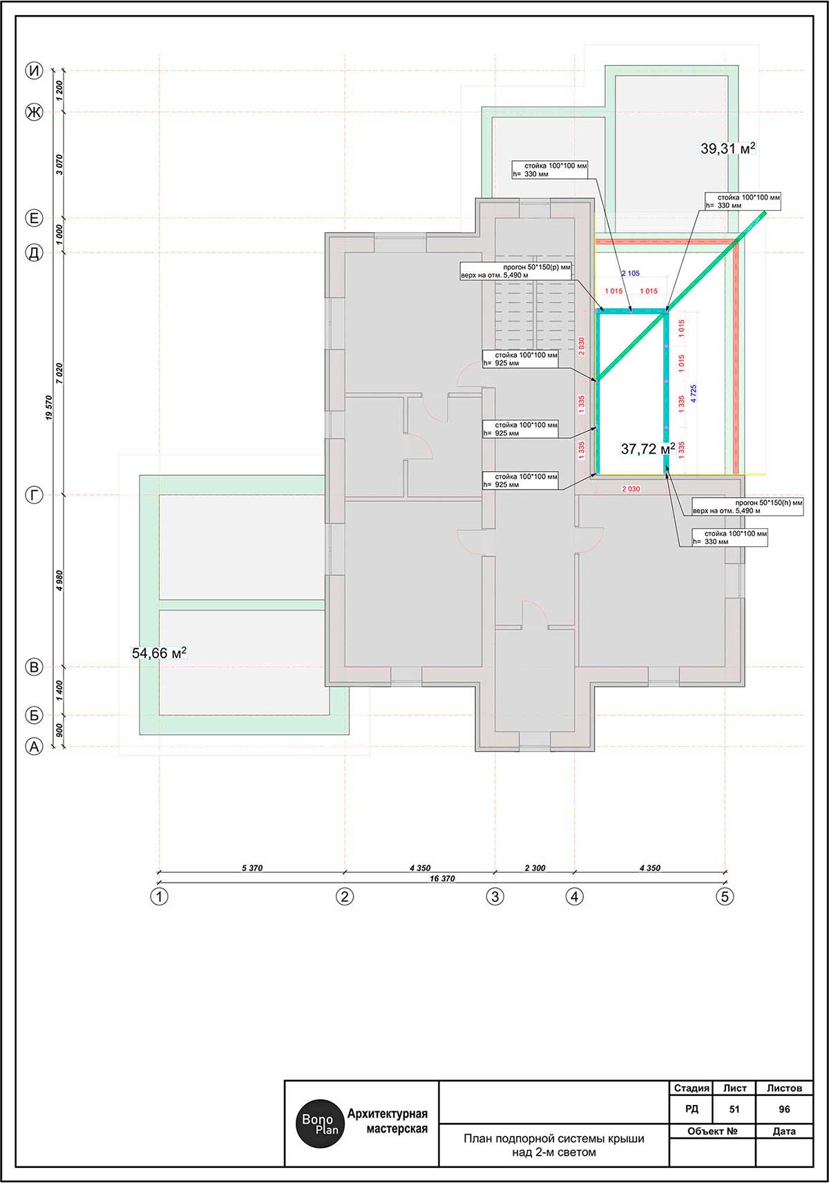
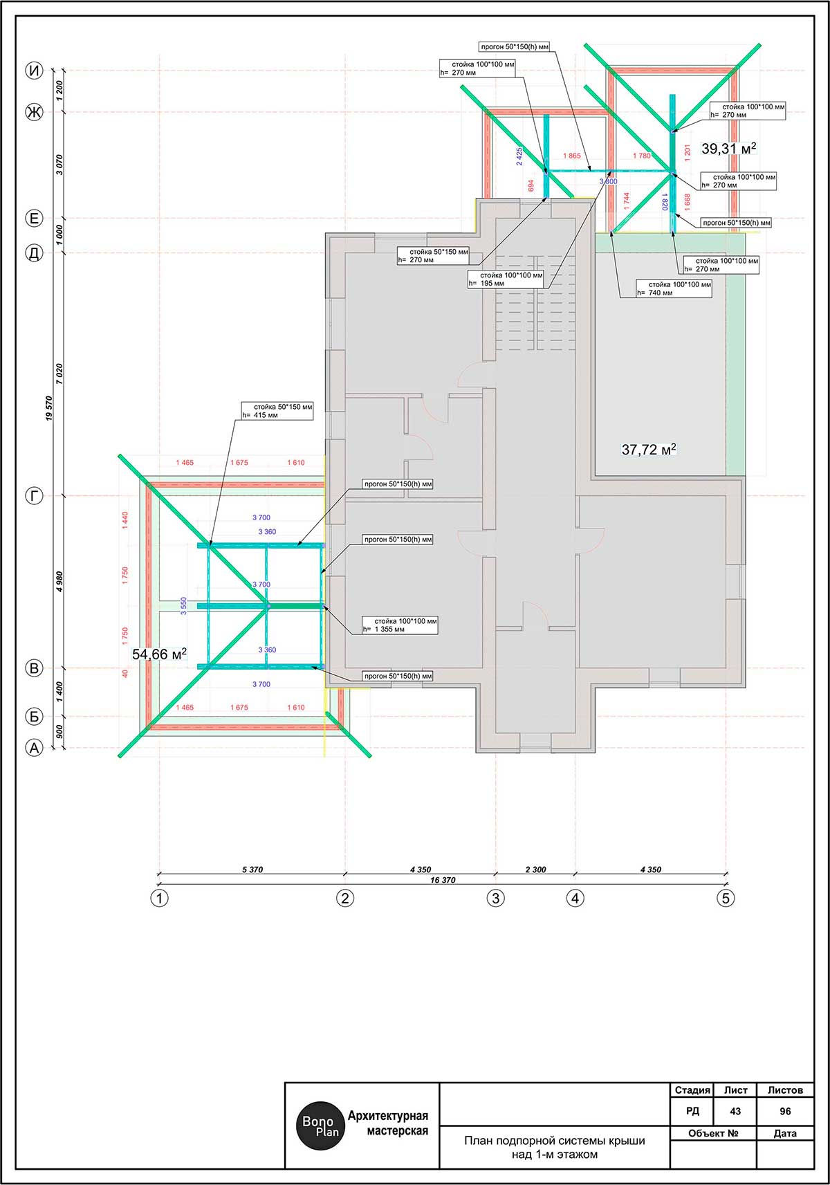
51.-План-подпорной-системы-крыши-над-2-м-светом
51.-План-подпорной-системы-крыши-над-2-м-светом
52.-3D-вид-подпорной-системы-крыши-над-2-м-светом
52.-3D-вид-подпорной-системы-крыши-над-2-м-светом
53.-Схема-стропильной-системы-крыши-над-2-м-светом
53.-Схема-стропильной-системы-крыши-над-2-м-светом
54.-3D-вид-стропильной-системы-крыши-над-2-м-светом
54.-3D-вид-стропильной-системы-крыши-над-2-м-светом
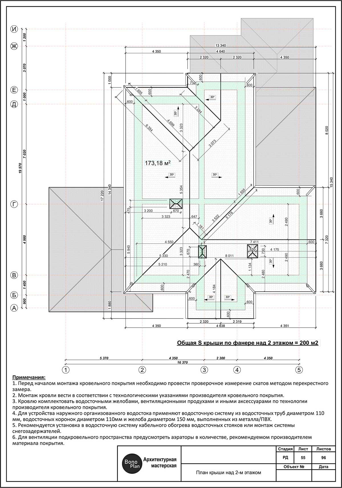
55.-План-крыши-над-2-м-этажом
55.-План-крыши-над-2-м-этажом
56.-План-мауэрлатов-и-лежней-крыши-над-2-м-этажом
56.-План-мауэрлатов-и-лежней-крыши-над-2-м-этажом
57.-3D-вид-мауэрлатов-и-лежней-крыши-над-2-м-этажом
57.-3D-вид-мауэрлатов-и-лежней-крыши-над-2-м-этажом
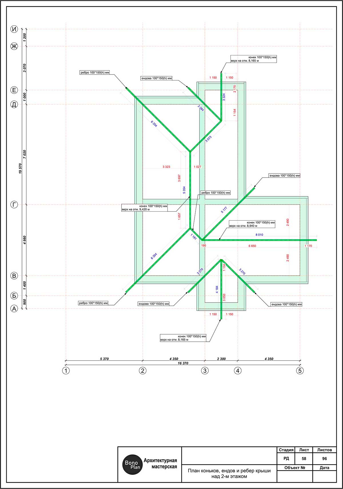
58.-План-коньков,-ендов-и-ребер-крыши-над-2-м-этажом
58.-План-коньков,-ендов-и-ребер-крыши-над-2-м-этажом
59.-3D-вид-коньков,-ендов-и-ребер-крыши-над-2-м-этажом
59.-3D-вид-коньков,-ендов-и-ребер-крыши-над-2-м-этажом
60.-План-подпорной-системы-крыши-над-2-м-этажом
60.-План-подпорной-системы-крыши-над-2-м-этажом
61.-3D-вид-подпорной-системы-крыши-над-2-м-этажом
61.-3D-вид-подпорной-системы-крыши-над-2-м-этажом
62.-Схема-стропильной-системы-крыши-над-2-м-этажом
62.-Схема-стропильной-системы-крыши-над-2-м-этажом
63.-3D-вид-стропильной-системы-крыши-над-2-м-этажом
63.-3D-вид-стропильной-системы-крыши-над-2-м-этажом
64.-Схема-наружных-инженерных-сетей
64.-Схема-наружных-инженерных-сетей
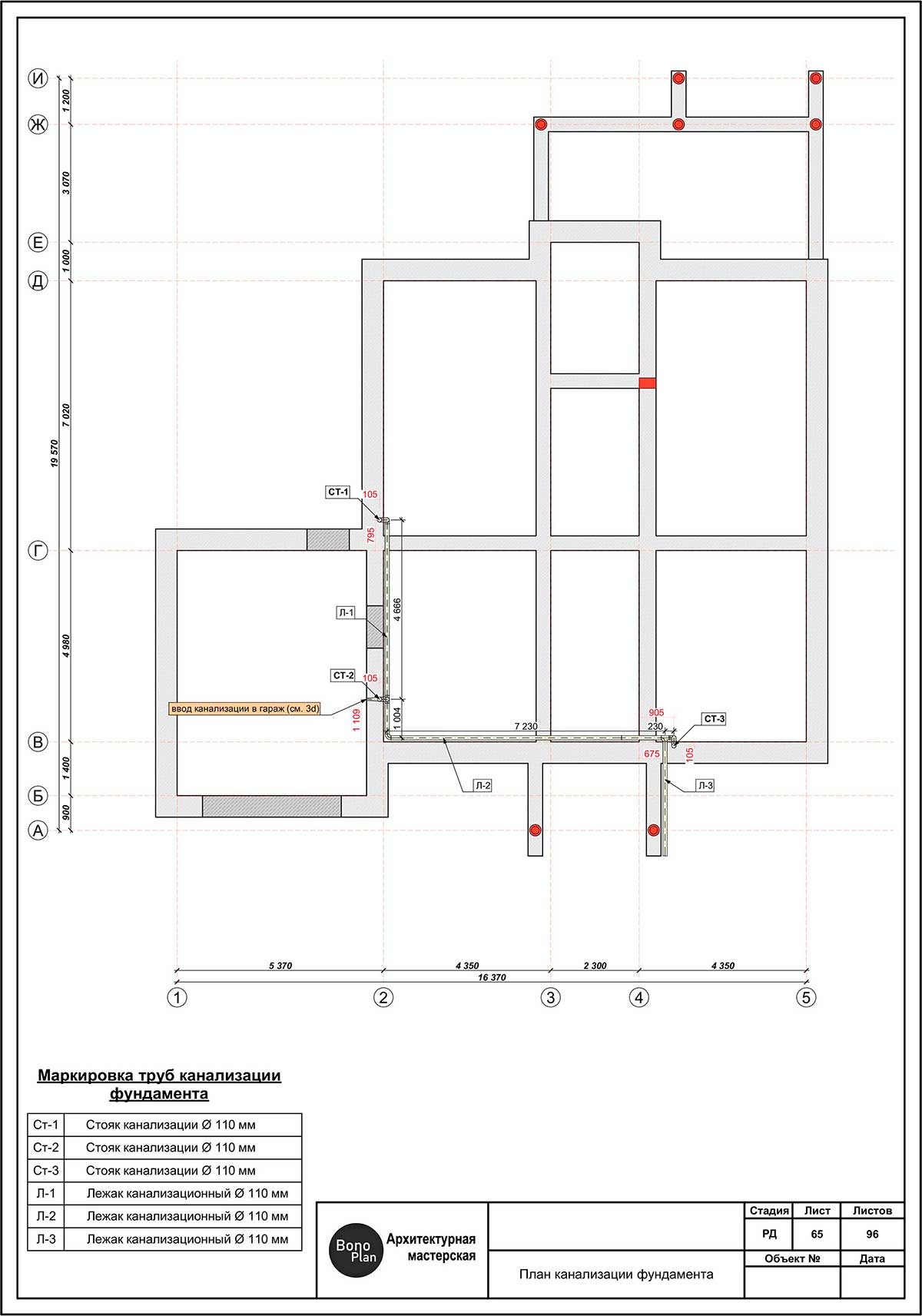
65,-План-канализации-фундамента
65,-План-канализации-фундамента
66.-План-канализации-и-вентиляции-1-го-этажа
66.-План-канализации-и-вентиляции-1-го-этажа
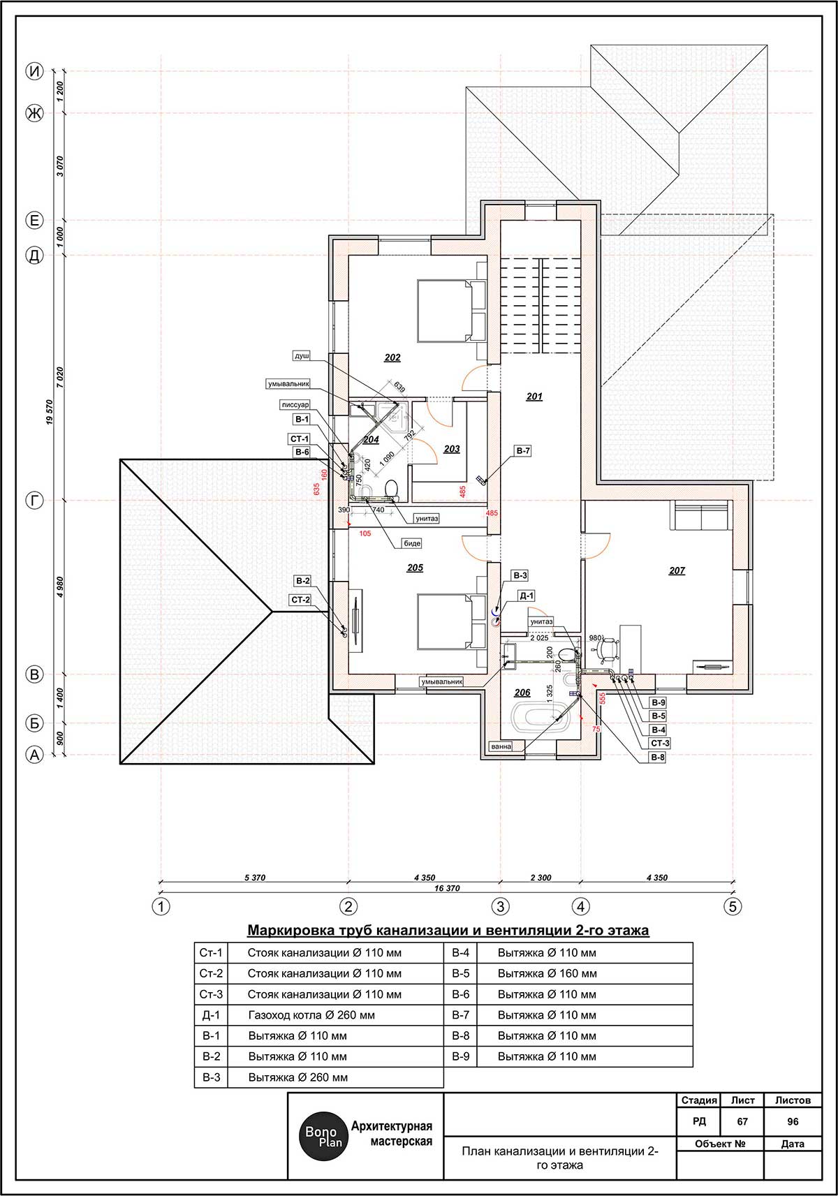
67.-План-канализации-и-вентиляции-2-го-этажа
67.-План-канализации-и-вентиляции-2-го-этажа
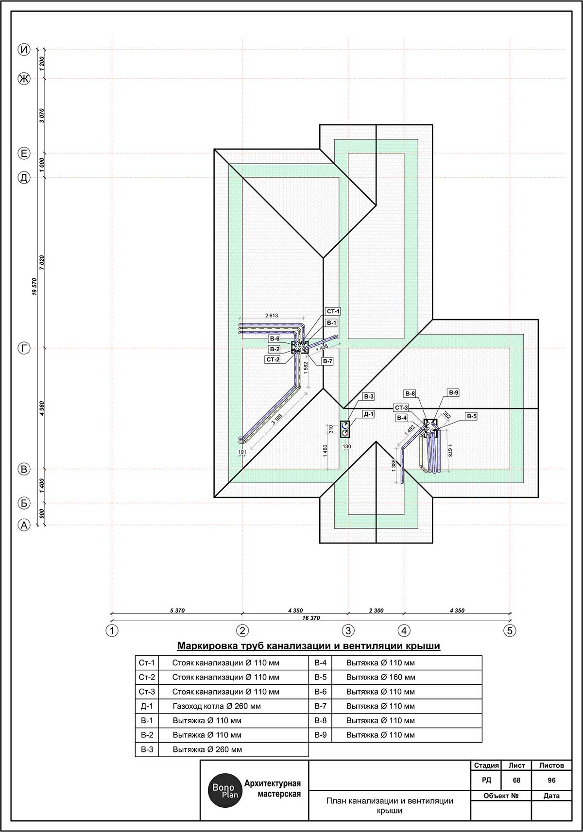
68.-План-канализации-и-вентиляции-крыши
68.-План-канализации-и-вентиляции-крыши
69.-3d-схема-канализации-и-вентиляции
69.-3d-схема-канализации-и-вентиляции
70.-Схема-конструкции-дымоходов-крыши
70.-Схема-конструкции-дымоходов-крыши
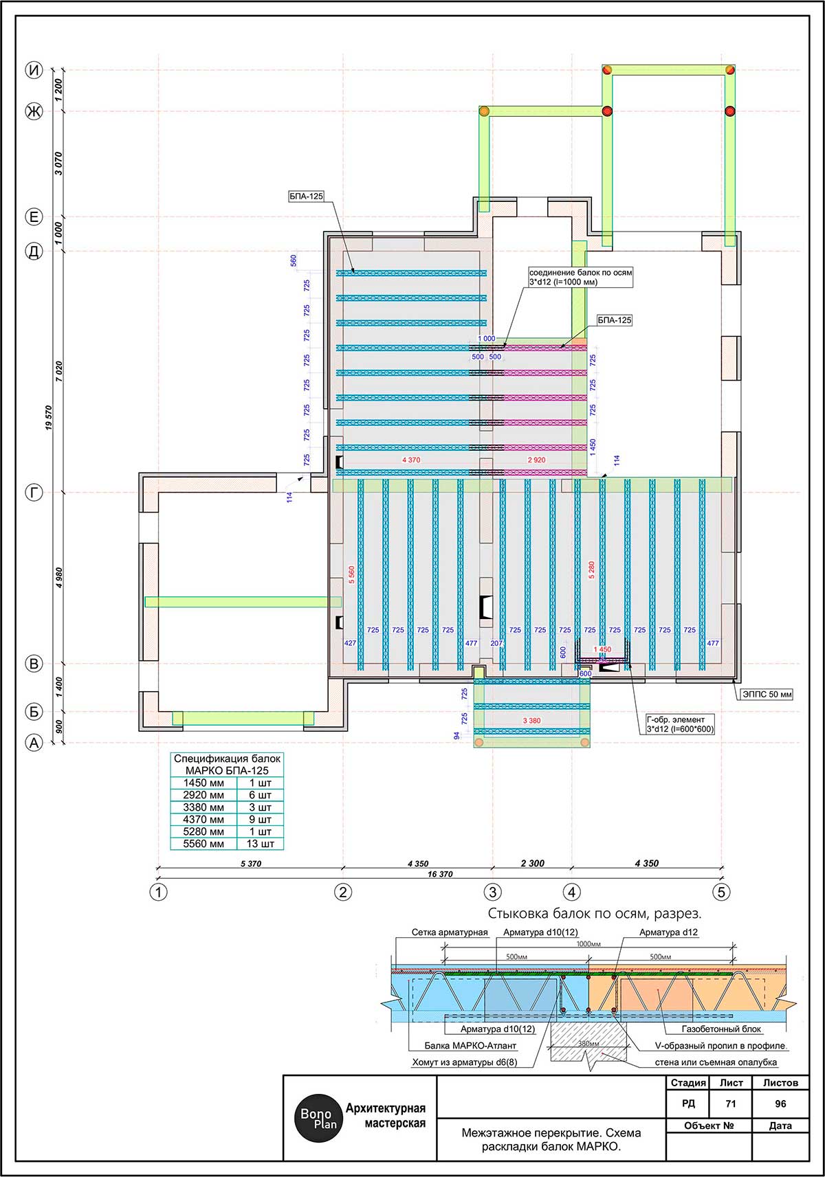
71.-Межэтажное-перекрытие.-Схема-раскладки-балок-МАРКО
71.-Межэтажное-перекрытие.-Схема-раскладки-балок-МАРКО
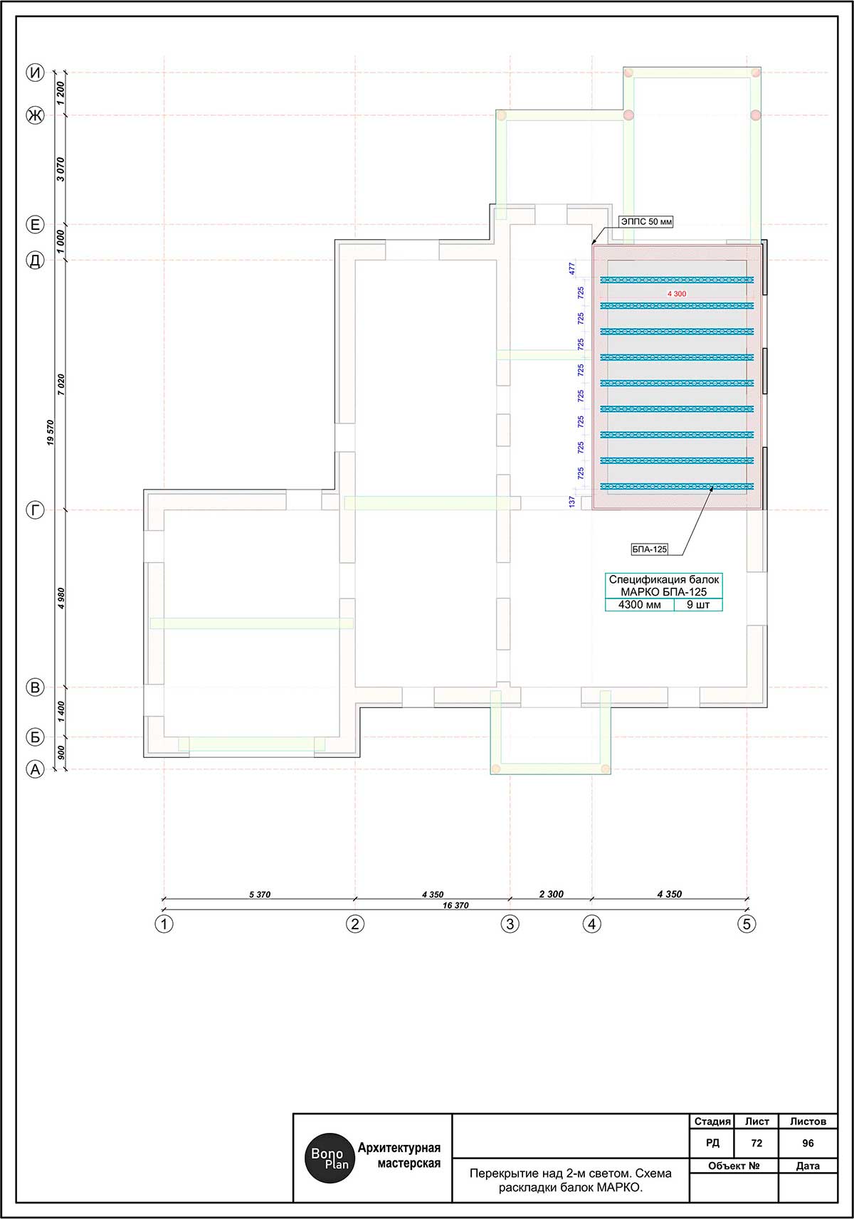
72.-Перекрытие-над-2-м-светом.-Схема-раскладки-балок-МАРКО
72.-Перекрытие-над-2-м-светом.-Схема-раскладки-балок-МАРКО
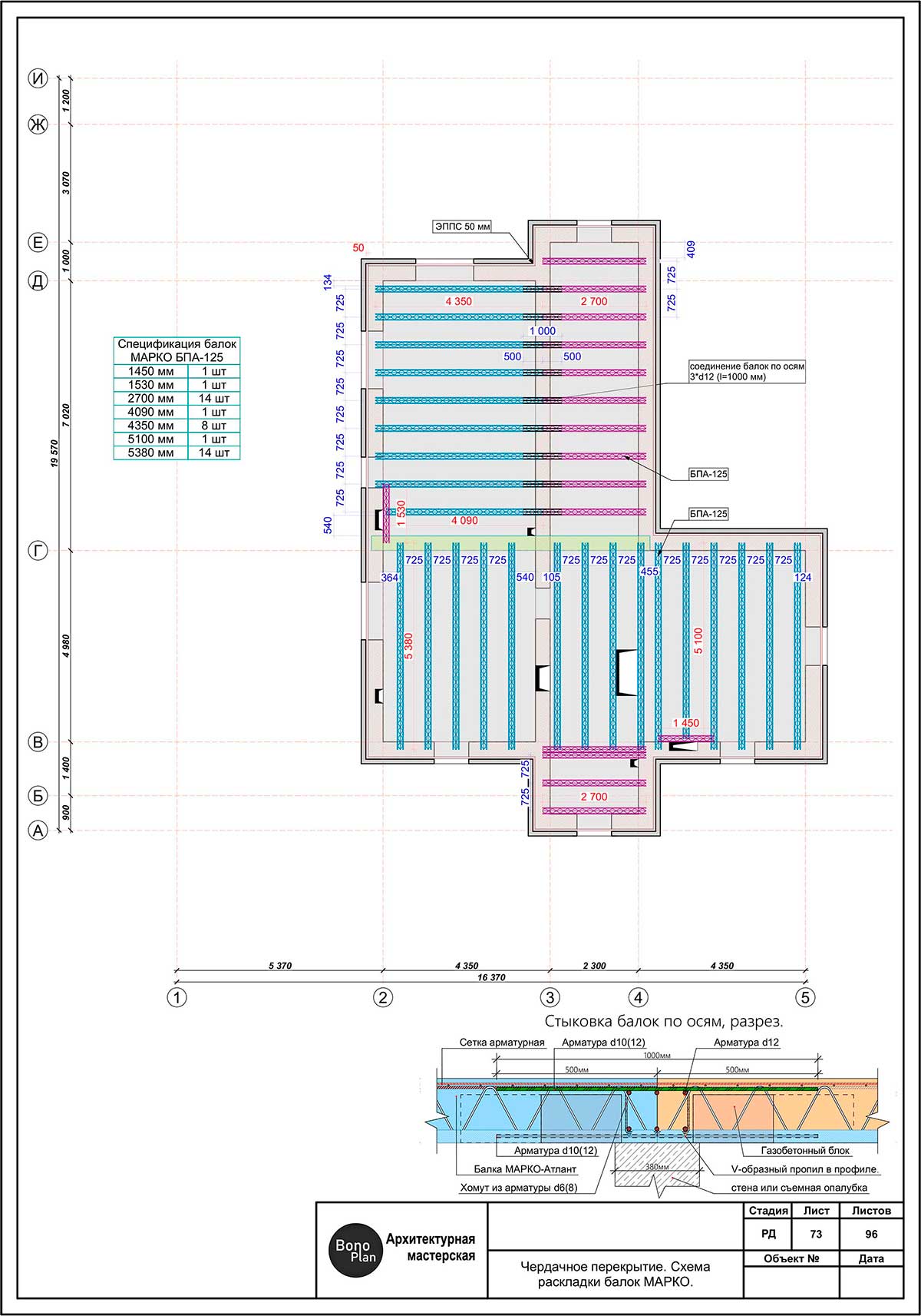
73.-Чердачное-перекрытие.-Схема-раскладки-балок-МАРКО
73.-Чердачное-перекрытие.-Схема-раскладки-балок-МАРКО
74.-Армирование-монолитных-участков
74.-Армирование-монолитных-участков
75.-Армирование-монолитной-плиты-h=220-мм
75.-Армирование-монолитной-плиты-h=220-мм
76.-Армирование-фундаментной-ленты,-лист-1
76.-Армирование-фундаментной-ленты,-лист-1
77.-Армирование-фундаментной-ленты,-лист-2
77.-Армирование-фундаментной-ленты,-лист-2
78-Лента.-Т-и-Г-образные-пересечения,-армирование-перехода-высот
78-Лента.-Т-и-Г-образные-пересечения,-армирование-перехода-высот
79.-Полы-по-грунту
79.-Полы-по-грунту
80.-Армирование-колонн
80.-Армирование-колонн
81.-Армирование-ригелей
81.-Армирование-ригелей
82.-Армирование-перемычек
82.-Армирование-перемычек
83.-Таблицы-расхода-материалов
83.-Таблицы-расхода-материалов
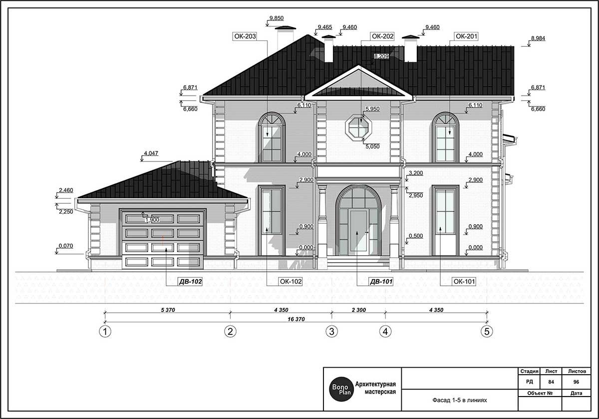
84.-Фасад-1-5-в-линиях
84.-Фасад-1-5-в-линиях
85-Фасад-5-1-в-линиях
85-Фасад-5-1-в-линиях
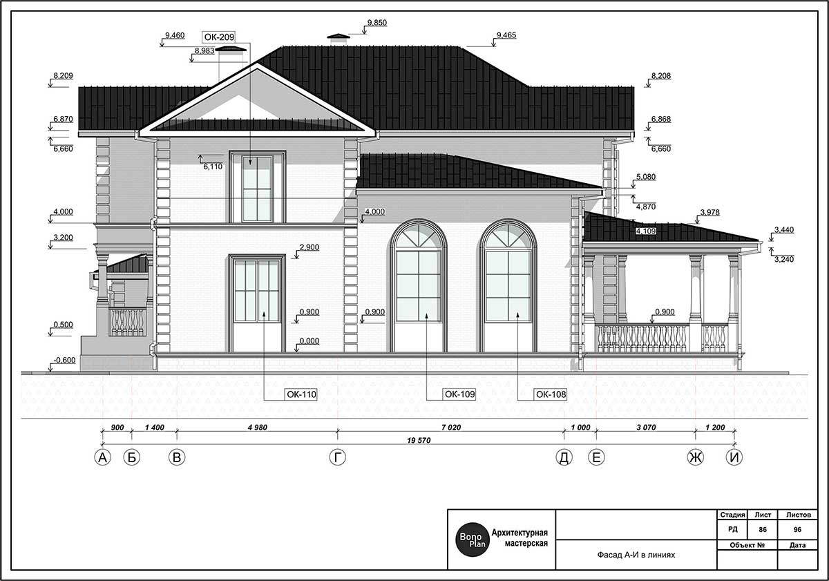
86.-Фасад-А-И-в-линиях
86.-Фасад-А-И-в-линиях
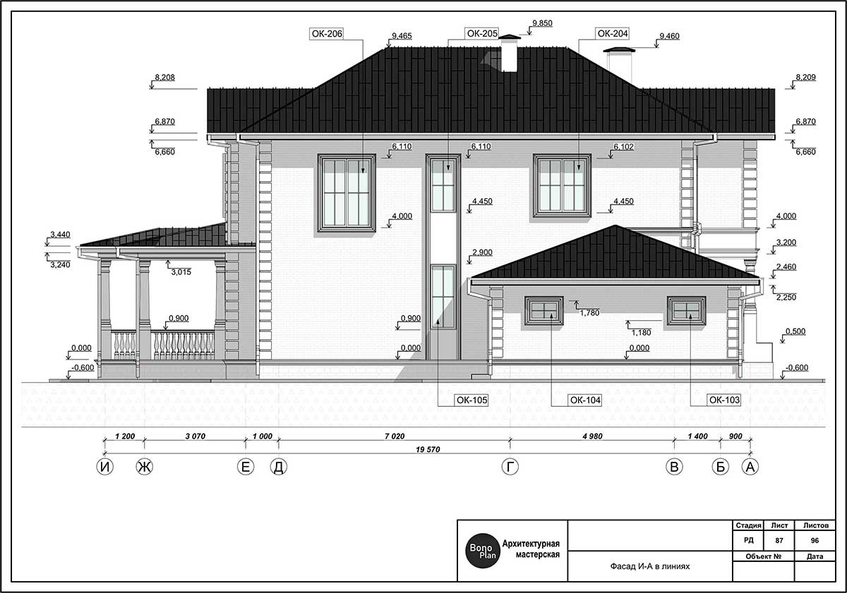
87.-Фасад-И-А-в-линиях
87.-Фасад-И-А-в-линиях
88.-Фасад-в-цвете-1-5
88.-Фасад-в-цвете-1-5
89.-Фасад-в-цвете-5-1
89.-Фасад-в-цвете-5-1
90.-Фасад-в-цвете-А-И
90.-Фасад-в-цвете-А-И
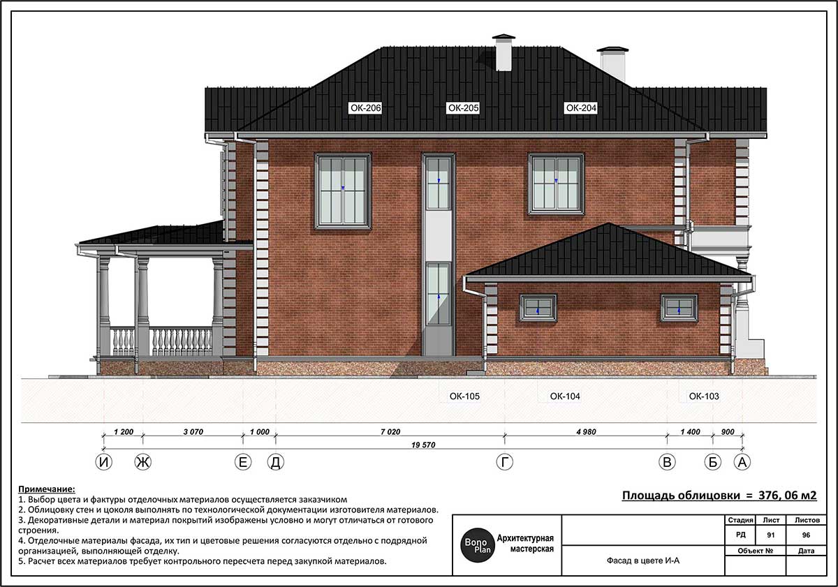
91.-Фасад-в-цвете-И-А
91.-Фасад-в-цвете-И-А
92.-План-маркировки-разрезов
92.-План-маркировки-разрезов
93.-Разрез-1-1
93.-Разрез-1-1
94.-Разрез-2-2
94.-Разрез-2-2
95.-Разрез-3-3
95.-Разрез-3-3
96.-Разрез-4-4
96.-Разрез-4-4
НАЗНАЧЕНИЕ РАБОЧЕГО ПРОЕКТА
Общее назначение рабочего проекта дома заключается в обеспечении успешного и качественного строительства жилого дома
  • Строительство:
    Рабочий проект дома представляет собой подробные планы, чертежи и спецификации, необходимые для фактического строительства. Он служит основой для строителей и подрядчиков, чтобы они могли точно воспроизвести дизайн и инженерные решения.
  • Планирование ресурсов:
    Рабочий проект определяет не только дизайн, но и требуемые материалы, оборудование и рабочую силу. Это помогает эффективно управлять ресурсами и снабжением, избегая задержек в процессе строительства.
  • Законодательное соответствие:
    Рабочий проект необходим для получения разрешения на строительство от местных органов власти и строгого соблюдения строительных норм.
  • Контроль качества:
    Руководствуясь рабочим проектом, можно контролировать, что работы выполняются согласно утвержденным планам. Это помогает обеспечить высокое качество строительства и избежать потенциальных ошибок.
  • Оценка стоимости:
    На основе рабочего проекта можно составить более точную смету расходов на строительство. Это помогает заказчику лучше планировать бюджет и искать финансирование.
  • Окончательная документация:
    По завершении строительства рабочий проект служит основой для составления окончательной документации, включая акты приемки-передачи и другие необходимые документы о соответствии объекта проекту.